< High School Engineering

The word design has several meanings. One meaning is a plan or drawing that shows the look and function of an object or structure before it is made. This is the meaning of design that we consider in this chapter. Examples of this meaning for design include:

  • a team of architects may develop the design of a building, specifying the building's appearance and the layout of rooms, doors, and hallways;
  • a team of engineers may develop the design for a new jet engine, specifying its structure and the materials from which it is built.

Figures 1 and 2 show examples of this type of design.

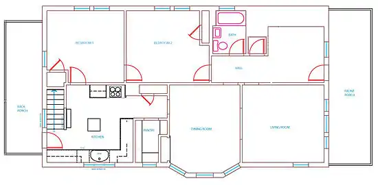
Figure 4.1: The floor plan of the first story of a house. Architects document their designs using such floor plans.
Figure 4.2: A design of a jet engine.

In general conversation, the word design is often used to mean "an arrangement of lines or shapes to form a pattern or decoration". Figure 3 shows an example of this meaning for design; this is not the meaning that we are considering in this chapter.

Figure 4.3: A design can be an arrangement of shapes and lines that forms a decorative pattern. This is the type of design that we will consider in this chapter.

A process by which a design for an object or a structure is created is called a design process. All design processes have similarities. They all involve creativity. They all involve making decisions. However, engineering design tends to require a more extensive and specialized knowledge of technology, math, and science than other types of design.

Engineering Design

Teams undertake several different types of engineering design projects. Most projects involve modifying or enhancing an existing product or process; these projects are described as incremental design. Sometimes a new product is developed from scratch. Such a project would be a new design. Both types of projects use the design process.

The purpose of most design projects is to develop an object, structure, or process that meets the needs of customers and stakeholders. A customer is someone who will use the designed object; customers usually pay for the product. A stakeholder is someone who has an interest in the product. Customers are stakeholders; other stakeholders may include government agencies, companies, and individuals. For example, stakeholders for a new automobile design might include the individuals who will purchase it, the mechanics who will maintain and repair it, the Environmental Protection Agency that will monitor its emissions, and the oil companies that will supply its fuel.

Design problems are almost always open ended—they rarely have a single correct solution. Instead, there are usually several solutions that will satisfy the desired needs. One of the challenges of design is to choose from the vast number of possible solutions. Indeed, engineered products may be very complex, and the design of such products may require that a design team make hundreds or thousands of decisions. Without a clearly defined process to follow, the team may not develop designs that meet the needs of customers or other stakeholders; the team may make poor decisions or lose sight of the important attributes of the product. Thus, it is important to use a structured design process. Structured design processes offer several advantages. They provide a framework in which the team decision-making is made explicit and the decision process can be well documented. They also reduce the likelihood that important issues will be forgotten or overlooked.

In this section, we describe "the engineering design process", which may give the impression that there is only one correct process. In reality, many processes have been successfully applied to engineering design. The design process discussed in this section may not always be the best for a given project or problem. The design process should not be applied blindly, but should be adapted to fit the circumstances of the design team and the particular project. The design process should also be subjected to a continuous improvement process so that the design team's performance improves over time.

The engineering design process may not result in a viable design for several reasons:

  • Incorrect or unrealistic assumptions.
  • A lack of understanding of the desired needs or underlying problems to be solved.
  • Errors in design specifications or representations (e.g. models and drawings).
  • Inadequate testing of prototypes.
  • Poor design choices.

Sometimes, poor design decisions made early in the process will make it impossible to develop a design that successfully meets customers' needs.

A Design Process

In this section we present a typical engineering design process. Other descriptions of the design process may break the process into somewhat different steps and may use somewhat different terms to describe the steps, but most design processes are similar to this one. An example of how this design process could be applied is in The Design Process in Action section.

Our basic engineering design process includes the steps shown in Figure 4. Note that Figure 4 shows each step being completed before the next step begins; this process is sequential. In many real-life situations, the design team may revisit a step several times to create the final design. We now describe the steps in more detail.

Figure 4.4: A design process.

Define the problem. In the problem definition step, the needs of potential customers are investigated; potential competitors are identified and their market positions are characterized; constraints imposed by government regulations or technological limitations are identified; and constraints on the design effort such as available personnel, time, and money are established. The problem definition process results in a clear understanding of the scope of the design project and the resources available to solve the design problem. This understanding is often expressed in a problem statement. This understanding is also expressed in the form of criteria and constraints.

Identify criteria and constraints. Criteria and constraints are used to evaluate the quality of a design. Constraints describe conditions that must be met by the design and design process; a design must meet all constraints. Criteria are measurable values that can be used to compare several designs and determine which is better.

Generate ideas. Once criteria and constraints are identified, the design team generates ideas for designs. These ideas come from many different sources; these include existing products (including competitors' products), brainstorming and other creative activities, and market and technical research. Ideas are combined to generate potential designs; at this stage, designs are concepts without a significant level of detail.

Explore possibilities. After potential designs are generated, they are explored to understand their characteristics and likely advantages and disadvantages.

Select a design concept. Potential designs are evaluated relative to the constraints and criteria, and one or more is selected to be designed in detail and prototyped. This selection is made using a structured process that requires the constraints to be met and chooses the best design according to the criteria.

Develop a detailed design. The selected design is developed in more detail. The design architecture is established by identifying physical and functional chunks. Shapes and dimensions are determined, materials and fabrication processes are selected, and product components are identified. The design is developed in enough detail that prototypes and models of the design can be made.

Create models and prototypes. One or more prototypes are typically implemented to characterize various aspects of the design. Prototypes may be physical models of the design in which dimensions, materials, and fabrication processes emulate important aspects of the design. Increasingly, prototypes are implemented using computer modeling software that simulates mechanical, electrical, and other characteristics of the product.

Test and evaluate. Prototypes are tested to see whether the design meets all constraints and performs acceptably relative to the criteria.

Refine the design. Testing and evaluation may reveal weaknesses of the design or indicate ways in which the design may be improved. At this point, the design may be refined to better meet the criteria and constraints. Sometimes, testing and evaluation show that a design will not work, so that a different design concept must be selected; in this case, the process goes back to the "Select a design concept" step.

Implementation. Depending on the context, the design is produced or constructed.

Communicate process and results. The activities and results of the design process are documented. This documentation is communicated to the appropriate stakeholders in the design.

Figure 4.5: A spiral design process.

The design process in Figure 4 is often called a sequential process because each step follows the previous one in direct sequence. This model does not account for the iterative nature of many actual design projects; as designs are developed, prototyped, and evaluated, their strengths and weaknesses are better understood and changes are made to the design on the basis of this improved understanding. After changing the design, the process of prototyping and evaluating is repeated. The design process in which the processes are iterated is often called a spiral design process. A spiral design process is illustrated in Figure 5.

The advantage of using a spiral design process is that the end design is often much better than the initial design. The significant disadvantage of the spiral design process is that time and resources are required for each loop in the spiral; if these are not planned for, the project may easily be late and over budget.

This material was adapted from the original CK-12 book that can be found here. This work is licensed under the Creative Commons Attribution-Share Alike 3.0 United States License

This article is issued from Wikibooks. The text is licensed under Creative Commons - Attribution - Sharealike. Additional terms may apply for the media files.